Es wurden keine Produkte für Ihre Anfrage gefunden!
ausgeschlossen
Lieferzeit
Online bestellbar!
Wenn die benötigten Artikel in unserem Lager verfügbar sind, geht es meist schneller.
Wenn nicht, sind wir auf unsere Vorlieferanten angewiesen und die Lieferzeit kann von obigen Angaben stark abweichen.
Informieren Sie uns bitte, wenn Sie die Ware früher benötigen.
In der Regel erhalten Sie am Bestelltag oder folgenden Werktag eine Mail mit genauerer Lieferzeitangabe.
Ist Ihnen die Lieferzeit zu lang, können Sie selbstverständlich zurücktreten.
Geleistete Zahlungen überweisen wir dann unaufgefordert sofort zurück.
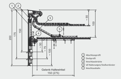
ALW TA-4F Dachrandabschl.-Profil
250mm, 5m, kpl.



alwitra-Dachrandabschlussprofil TA-4F
- mehrteiliges, stranggepresstes Aluminiumprofil
- Ansichtshöhe Serie TA-4F: 150 - 200 mm
- mit patentierten 4F-Halterungen
- stufenlos höhenverstellbar, horizontal verschiebbar, drehbar, winkelverstellbar
einsetzbar auf:
geraden und bogenförmigen Dachrändern
Dachrändern mit und ohne Aufkantung (Attika)
Dachrändern mit Randbohlen
- mehrteiliges, stranggepresstes Aluminiumprofil, korrosionsbeständig
- 2,5 m Deckprofilstäbe für den materialgleichen und spannungsfreien Anschluss der Dachabdichtung
- mit stufenlos höhenverstellbaren, patentierten, biegesteifen 4F-Halterungen/Stoßverbindern mit integrierten Dichtungen
- 5,0 m Profilstäbe mit Ansichtshöhen von 150, 175 und 200 mm
- mit 5,0 m Anschlussbrückenstäben zur Linienbefestigung sowie zur Sicherung der Abdichtung gegen Windunterströmung entlang des Dachrandes und s-förmiger Ausformung der Anschlussbahn
- einfach und schnell montierbar
alwitra-Dachrandabschlussprofile
- industriell gefertigte montagefertige Profilserien (T plus, TW 125plus, TA , TA-4F, TAG, art-line 1) für alle Dachabdichtungen (Kunststoff- oder Bitumen-Dachbahnen) aus Aluminium
- leicht und korrosionsbeständig
- recyclebar
- werden bei Bedarf kunststoffbeschichtet
- normen- und richtlinienkonform
- für gerade oder bogenförmige Dachränder ohne und mit Randaufkantung (Attika)
- mit ebener oder profilierter Ansicht und Ansichtshöhen von 80 bis 1050 mm und mit nicht betonten oder betonten Stößen
- mit praxisbewährtem spannungsfreien Anschluss an die Dachabdichtung
- montagefertige Außen-/Innenecken und Endkappen
- auf einfachste Weise schnell montierbar
Produktmerkmale
• Hersteller: | alwitra |
• Artikel: | Dachrandabschl.-Profil |
• Ausführung: | komplett |
• Farbe: | blank, natur |
• Höhe/Dicke/Stärke: | 250mm |
• Länge: | 5m |
• Material: | Aluminium |
• Typ: | TA-4F |
Die Bearbeitungspauschale entfällt, wenn
oder
b) Sie als Stammkunde einen Jahresumsatz von wenigstens 3.480,- € tätigen
Bei Zahlung erhalten Sie per Mail automatisch einen Gutscheincode in gleicher Höhe (23,80 €), den Sie bei Ihrer nächsten Bestellung ab 238,- € einlösen können.
Lieferkosten für den Gesamtwert der Frachtgruppe "ALWITRA1"
ab Summe ?
Wenn der Gesamtwert aller Artikel dieser Frachtgruppe die
angegebene Summe erreicht, wird die angegebene Lieferpauschale
berechnet bzw. auf 0,- € reduziert, wenn der
Gesamt-Auftragswert den Wert in der Spalte „Frachtfrei (ab
Gesamtauftragswert)“ erreicht!
Alle Werte werden automatisch errechnet und im Warenkorb ausgewiesen.
Wenn die Gesamtmenge aller Artikel dieser Frachtgruppe die
angegebene Mindestmenge erreicht, werden die angegebenen
Lieferkosten je Stk., mindestens aber die angegebene
Mindestfrachtpauschale berechnet bzw. auf 0,- € reduziert,
wenn der Gesamt-Auftragswert den Wert in der Spalte „Frachtfrei
(ab Gesamtauftragswert)“ erreicht!
Alle Werte werden automatisch errechnet und im Warenkorb ausgewiesen.
|
Lieferpauschale |
Frachtfrei (ab Gesamt-Auftragswert) ?
Wenn Ihr Gesamt-Auftragswert diese Summe erreicht, werden für alle Artikel aus
dieser Frachtgruppe keine Lieferkosten berechnet!
Alle Werte werden automatisch errechnet und im Warenkorb ausgewiesen.
|
0.00 € | 249.90 € | 9,520.00 € |
595.00 € | 190.40 € | 9,520.00 € |
1,190.00 € | 130.90 € | 9,520.00 € |
2,380.00 € | 71.40 € | 9,520.00 € |
3,570.00 € | 35.70 € | 9,520.00 € |
4,760.00 € | 0.00 € | 9,520.00 € |
Preis oder Lieferkosten zu hoch?
Legen Sie die gewünschten Artikel einfach auf den Anfrage-/Merkzettel und starten Sie eine Preisanfrage (auch aus dem Warenkorb möglich).
Wir machen Ihnen gerne ein individuelles Angebot!